Договірна Шоковая заморозка,низькотемпературні камери для переробки сиру Полтава
- Підбір по розташуванню: Полтава, Полтавська область: продати купити, Україна
Наша організація ТМ «Українська холодильна компанія» має багаторічний досвід роботи з провідними виробниками Української економіки хлібобулочної продукції.
У постійному зв’язку з практикуючими технологами та освітніми організаціями, пропонуємо нашим клієнтами якісні послуги з питань холодильної та кліматичної техніки, загалом вирішення моментів зберігання та заморозки в технологічній ланці підприємства Партнеру.
Наші інформаційні послуг
-консалтинг
-аналіз технологічних навантажень
-правильний підбір технічного завдання для інженерів,підрядників.
-аналіз ціни майбутніх затрат для обслуговування і використання єлектроенергії.
Наші інженерні послуги
-технічні розробки (передовий світовий досвід)
-інноваційні рішення
-проектування (офіційна ліцензія)
-прямі поставки з провідних заводів світу (економічність рішеннь)
-проведення монтажних та пусконалагоджувальних робіт
-сервісне обслуговування та повна інженерна підтримка в процесі єксплуатації.
Підтримання штату компанії технологів майже всіх галузей харчової промисловості надає нам змогу постійно знаходитися в тренді своєї галузі.
Інженерний відділ знає та адаптує інноваційні рішення та досвід провідних світових компаній.
Також проходе постійне навчання і ліцензування.
Відділ поставок моніторить не тільки технічні можливості виробників обладнання та матеріалів,а ще мінімізує цінову категорію для виробників Української економіки.
Відділ монтажу та сервісу має спеціалізованний транспорт,інструмент та багатий досвід реалізації подібних проектів.Також наші спеціалісти мають всі допуски для роботи з напрямками СС2 та СС3.
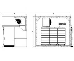
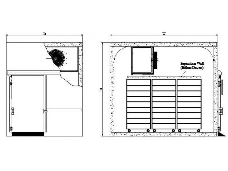
Наші продукти для сирної продукції
-молокоохолоджувачі
-середньотемпературна камера для зберігання сироватки та інших видів сировини
-камера дозрівання
-додаткове охолодження конвеєрів та ліній
-шокова заморозка
-тунельна заморозка
-морозильні камери
Професіоналізм-запорука якісного інвестування
Адреса:
м. Харків
просп. Льва Ландау, 149
Телефон: +380 96 623 4712
Електронна адреса: ukr.coolingcompany@gmail.com
Наш сайт: https://ukrholod.com/
Корисна інформація
- Уникайте шахрайства! Для здійснення угоди зустрічайтеся з продавцем або платіть через PayPal
- Ніколи не платіть через Western Union, Moneygram та інші анонімні платіжні системи
- Не варто купувати або продавати за межами вашої країни. Не приймайте касові чеки за межами країни
- Наш сайт ніколи не бере участь в угодах, а так само не приймає платежі на користь публікатора оголошення, не здійснює доставку, не надає гарантії, не надає послуги умовного депонування, не надає захист в угоді покупцям " або "сертифікати продавцям"
Схожі оголошення
-
Шоковая заморозка, низькотемпературні камери для переробки молочної продукціїПромислове обладнання - Полтава (Полтавська область: продати купити) - 30/09/2025 1.00 ₴Наша організація ТМ «Українська холодильна компанія» має багаторічний досвід роботи з провідними виробниками Української економіки хлібобулочної продукції. У постійному зв’язку з практикуючими технологами та освітніми організаціями, пропонуємо нашим ...
-
Шоковая заморозка,низькотемпературні камери для переробки м'яса та полуфабрикатівПромислове обладнання - Полтава (Полтавська область: продати купити) - 25/09/2025 1.00 ₴Наша організація ТМ «Українська холодильна компанія» має багаторічний досвід роботи з провідними виробниками Української економіки хлібобулочної продукції. У постійному зв’язку з практикуючими технологами та освітніми організаціями, пропонуємо нашим ...
-
Лист сталевий 30ХГСА 6 мм (Словенія) — високоміцна легована сталь для відповідальних конструкцій ✅Металеві конструкції - Кременчук (Полтавська область: продати купити) - 14/05/2025 ДоговірнаПропонуємо до продажу листи з високоякісної конструкційної сталі 30ХГСА (30HGSA) виробництва SIJ RAVNE SYSTEMS D.O.O. (Словенія). Марка сталі: SIQUAL M133 (30ХГСА) Товщина: 6 мм Розміри: 1000 х 6000 мм Маса нетто: 2241 кг Маса брутто: 2350 кг Упаковк...

Loading


Коментарі
Залиш свій коментар (спам і образи будуть видалені)